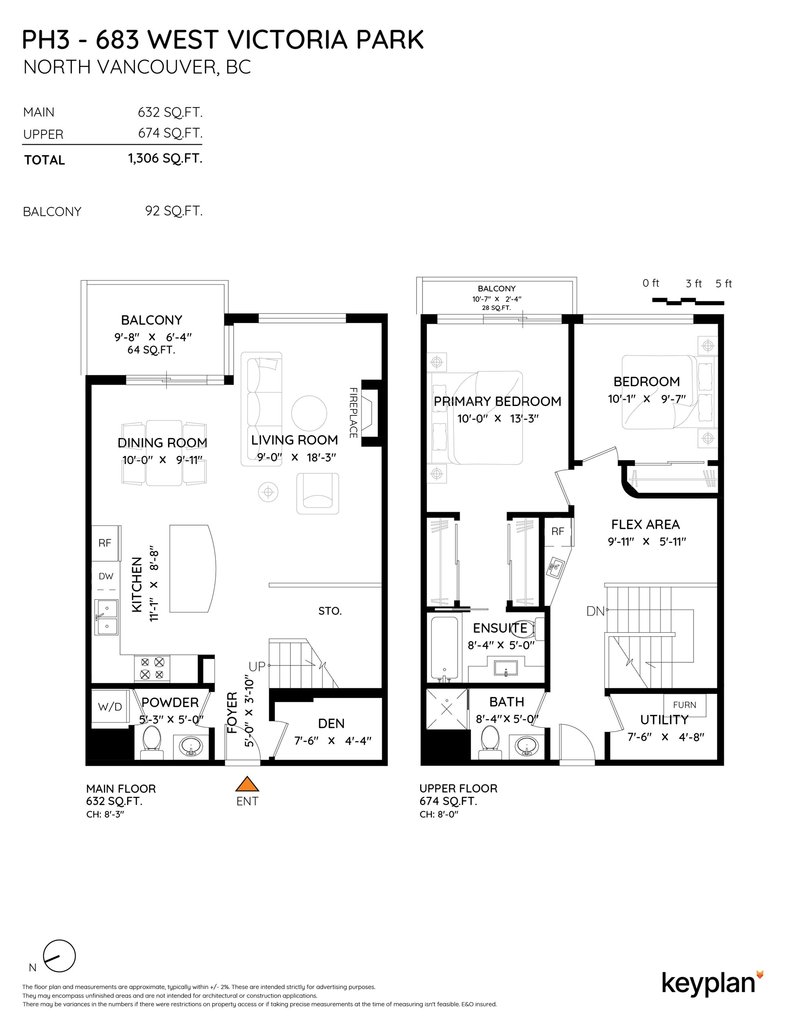
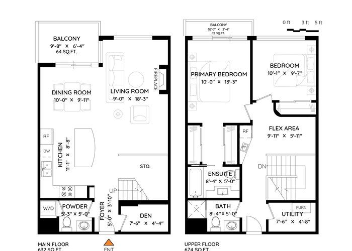
PH3 - 683 Victoria Park
Lower Lonsdale, North Vancouver, BC

Active
$1,399,000
Listed By: Oakwyn Realty Ltd.
Listed 2 months ago

Details

Beds
2
Bath
3
Built
2008
Living Area
1306 SqFt.
$/SqFt.
1071.21
Taxes
$3,809.47

Description

Welcome home to Mira On The Park, the crown jewel of Vancouver’s North Shore, designed by award winning Besharat Friars. This timeless, beautifully appointed, 1306 sqft PENTHOUSE exudes sophistication, comfort & style on 2 levels. Luxuriate in your 2bed,3bath+flex home offering panoramic water, mountain & park views, an inviting European style kitchen w stone counters & SS appliances & featuring 9ft ceilings, oversized windows, a cozy gas FP, AC & 2 private balconies. With exceptional amenities, 2 parking & storage & Ideally located adjacent to beautiful Victoria Park & within walking distance to shops at Central & Lower Lonsdale, this home has it all & should not be missed. Showings by apt, call to view today. Note:Some images virtually staged. OPEN HOUSE SUN OCT 26th - 2:00PM-4:00PM

Amenities
Bike Room Exercise Centre Concierge Caretaker Trash Maintenance Grounds Gas Management Recreation Facilities Sewer Snow Removal Water Shopping Nearby Central Air Balcony Elevator Storage In Unit

Features

Washer/Dryer Dishwasher Refrigerator Stove Freezer Microwave Window Coverings Central Air

Site Influences

Shopping Nearby Balcony Central Location Marina Nearby Private Recreation Nearby

Location

Technical Information

MLS® # R3044931
Property Type Apartment
Dwelling Type Apartment Unit
Home Style Multi Family,Residential Attached
Kitchens 1
Year Built 2008
Parking Underground,Front Access,Garage Door Opener
Tax $3,809 in 2024
Strata No BCS2797
Complex Name Mira On The Park
Strata Fees $862

Floor Area (sq. ft.)

Main Floor 632
Above 1,306
Total 1,306

Similar Apartments For Sale in Lower Lonsdale, North Vancouver

Date Address Bed Bath Kitchen Asking Price $/Sqft DOM Levels Built Living Area Lot Size
09/08/2025

This Property

2 3 1 $1,399,000 Login to View 68 2 2008 1,306 sqft N/A
08/29/2025

308 177 W 3rd Street

2 2 1 $1,205,000 Login to View 78 1 2019 1,025 sqft N/A
09/29/2025

509 422 E 3rd Street

3 2 1 $1,298,000 Login to View 47 1 2025 986 sqft N/A
10/28/2025

361 422 E 3rd Street

3 2 1 $1,399,000 Login to View 18 1 2025 1,074 sqft N/A
09/30/2025

1202 120 W 2nd Street

2 2 1 $1,299,000 Login to View 46 1 1990 1,179 sqft N/A
05/28/2025

905 172 Victory Ship Way

2 2 1 $1,215,000 Login to View 171 1 2010 1,049 sqft N/A
10/21/2025

308 683 W Victoria Park

2 2 1 $1,388,000 Login to View 25 1 2008 1,214 sqft N/A
10/15/2025

104 199 Victory Ship Way

2 2 1 $1,298,000 Login to View 31 0 2016 939 sqft N/A
09/29/2025

707 118 Carrie Cates Court

2 2 1 $1,199,000 Login to View 47 1 2019 838 sqft N/A
06/10/2025

708 185 Victory Ship Way

2 2 1 $1,295,000 Login to View 158 1 2018 867 sqft N/A
10/21/2025

501 683 Victoria Park West

2 2 1 $1,199,000 Login to View 25 1 2008 1,257 sqft N/A

Recently Sold Condos In Lower Lonsdale, North Vancouver

Date Address Bed Bath Kitchen Asking Price Sold Price $/Sqft DOM Levels Built Living Area Lot Size
11/04/2025

216 140 E 4th Street

1 1 1 Login to View ( -1.8%) Login to View 27 1 1982 634 sqft N/A
10/31/2025

804 162 Victory Ship Way

2 2 1 Login to View ( -3.5%) Login to View 8 1 2010 1,066 sqft N/A
10/29/2025

206 615 E 3rd Street

1 1 1 Login to View ( -2.4%) Login to View 44 1 2019 625 sqft N/A
10/27/2025

305 235 W 4th Street

1 1 1 Login to View ( -0.6%) Login to View 7 1 1981 595 sqft N/A
10/25/2025

312 123 W 1st Street

2 2 1 Login to View ( -2.9%) Login to View 8 1 2016 1,203 sqft N/A
10/25/2025

1301 151 W 2nd Street

2 2 1 Login to View ( -4.8%) Login to View 24 1 2005 870 sqft N/A
10/24/2025

306 145 St. Georges Avenue

0 1 1 Login to View ( -2.2%) Login to View 78 1 1975 505 sqft N/A
10/23/2025

512 105 W 2nd Street

3 3 1 Login to View ( -6.7%) Login to View 59 1 2016 2,199 sqft N/A
10/21/2025

306 212 Forbes Avenue

1 1 1 Login to View ( -3.2%) Login to View 6 1 1977 669 sqft N/A
10/18/2025

414 111 E 3rd Street

1 1 1 Login to View ( -2.0%) Login to View 12 1 2013 626 sqft N/A

Disclaimer: Listing data is based in whole or in part on data generated by the Real Estate Board of Greater Vancouve and Fraser Valley Real Estate Board which assumes no responsibility for its accuracy.