21960 River Road
West Central, Maple Ridge, BC

Active
$649,900
Listed By: Royal LePage Sterling Realty
Listed 1 week ago

Details

Beds
3
Bath
2
Built
1992
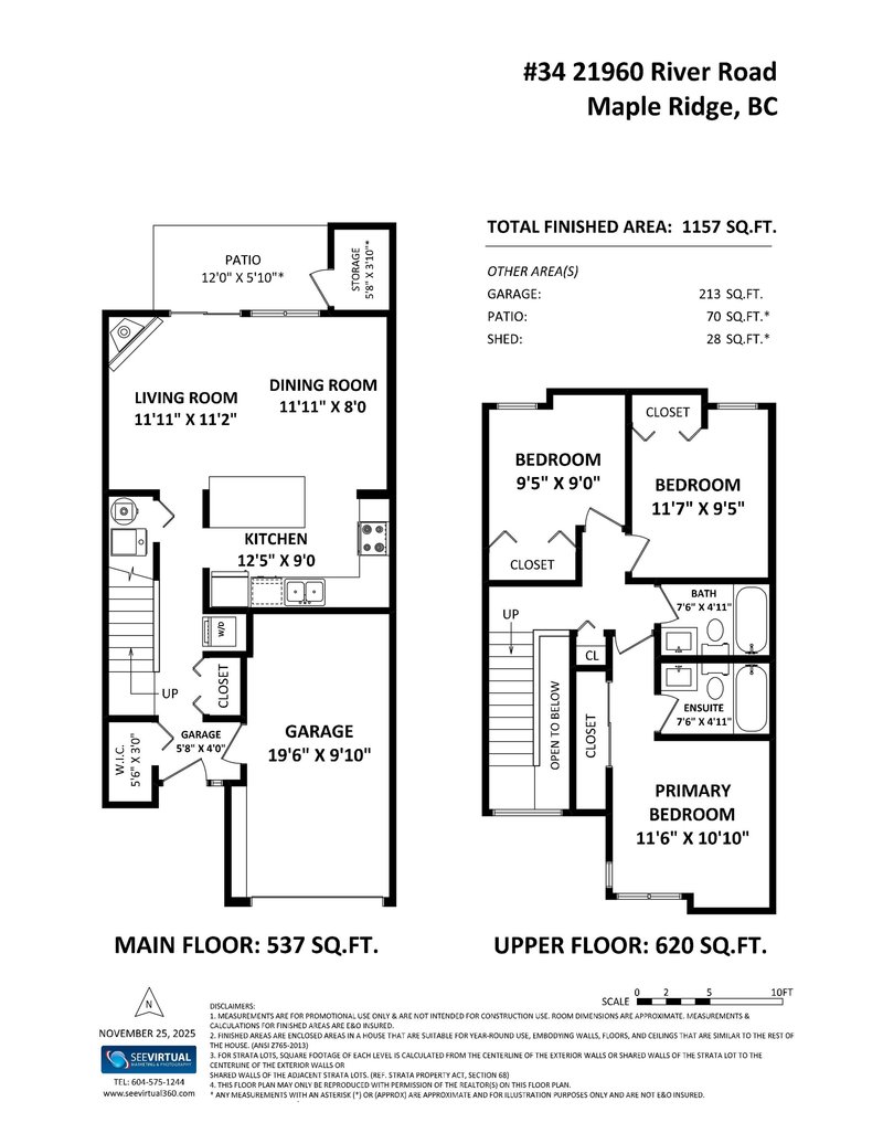
Living Area
1157 SqFt.
$/SqFt.
561.71
Taxes
$4,286.48

Description

Welcome to Foxborough Hills where the perfect home for FTHB and young families awaits!! This beautifully updated 3 bedroom, 2 full bathroom, townhome offers an open concept main floor perfect for entertaining & daily living, featuring a modern kitchen with quartz countertops, white shaker cabinets, S/S appliances and gas F/P to cozy up to this winter. Kids have too much energy? The playground awaits mere steps from your patio for easy access play and supervision. The neutral colour palette, updated flooring and refreshed bathroom vanities create clean contemporary feel throughout to your bedrooms & bathrooms upstairs. Enjoy single car garage + stall, in a pet friendly (large dogs too!) family oriented complex just steps from West Coast Express and all your daily needs!!

Amenities
Maintenance Grounds Management Recreation Facilities Playground

Features

Washer/Dryer Dishwasher Refrigerator Stove

Site Influences

Playground

Location

Technical Information

MLS® # R3070018
Property Type Townhouse
Dwelling Type Townhouse
Home Style Residential Attached
Kitchens 1
Year Built 1992
Parking Additional Parking,Garage Single
Tax $4,286 in 2025
Strata No LMS690
Strata Fees $447

Floor Area (sq. ft.)

Main Floor 537
Above 1,157
Total 1,157

Similar Townhouses For Sale in West Central, Maple Ridge

Date Address Bed Bath Kitchen Asking Price $/Sqft DOM Levels Built Living Area Lot Size
11/26/2025

This Property

3 2 1 $649,900 Login to View 11 2 1992 1,157 sqft N/A
10/09/2025

36 21960 River Road

3 2 1 $649,900 Login to View 59 2 1992 1,194 sqft N/A
09/09/2025

21536 Mayo Place

3 2 1 $560,000 Login to View 89 2 1973 1,057 sqft N/A
10/20/2025

4 12070 216 Street

3 3 1 $699,900 Login to View 48 2 1997 1,467 sqft N/A

Recently Sold Townhouses In West Central, Maple Ridge

Date Address Bed Bath Kitchen Asking Price Sold Price $/Sqft DOM Levels Built Living Area Lot Size
11/27/2025

11759 Darby Street

4 3 1 Login to View ( -1.5%) Login to View 80 2 1972 2,079 sqft N/A
11/11/2025

9 11848 Laity Street

2 3 1 Login to View ( 1.8%) Login to View 5 2 1989 1,612 sqft N/A
11/09/2025

22188 122 Avenue

4 3 1 Login to View ( -10.0%) Login to View 61 3 1981 1,447 sqft N/A
10/28/2025

31 21960 River Road

3 2 1 Login to View ( -2.5%) Login to View 27 2 1993 1,227 sqft N/A
10/27/2025

22180 122 Avenue

4 3 1 Login to View ( 0.5%) Login to View 5 3 1981 1,447 sqft N/A
10/14/2025

7 12049 217 Street

2 1 1 Login to View ( -3.6%) Login to View 43 1 1988 1,023 sqft N/A
09/25/2025

45 21555 Dewdney Trunk Road

2 2 1 Login to View ( -6.1%) Login to View 56 2 1970 1,036 sqft 1,412 sqft
09/25/2025

21522 Mayo Place

3 2 1 Login to View ( -3.3%) Login to View 16 2 1973 1,100 sqft N/A
09/20/2025

2 12016 York Street

3 2 1 Login to View ( -4.0%) Login to View 103 2 2014 1,444 sqft 2,298 sqft
08/13/2025

1 22308 124 Avenue

2 2 1 Login to View ( -12.8%) Login to View 29 1 1989 1,082 sqft N/A

Disclaimer: Listing data is based in whole or in part on data generated by the Real Estate Board of Greater Vancouve and Fraser Valley Real Estate Board which assumes no responsibility for its accuracy.